設備CAD・TFAS初心者向け講座 第4弾。今回は設備施工図に乗せる建築図のデータ整理について紹介したいと思います。
設備施工図には建築から受領した平面詳細図や躯体図のデータを載せる必要がありますが、
受領したデータをそのまま載せてしまうと、寸法や文字の情報が多すぎて肝心の設備図が見にくくなってしまいます。
受領データの載せ替えをする際の注意ポイントや、なるべく時間をかけずにデータ整理を行うコツを紹介したいと思います。
・


目次
1.設備施工図に必要な建築情報って何?
設備施工図には建築図面の情報を載せる必要があります。
設備図に載せる建築図は主に間仕切りや部屋情報が載っている「平面詳細図」、躯体の情報が載っている「見上図・見下図(伏図)」があります。
例えば受領した意匠図をそのまま全部表示すると、什器や間仕切りの寸法・建具情報などが表示され設備図が非常に見づらくなってしまいます。

天井施工図であれば、什器や建具の寸法・情報は不要なため、データを整理するだけで非常に見やすくなります。

・
平詳図を整理したいが何を非表示にすればいい?
設備施工図に乗せる建築図は、どの情報を表示しどの情報を非表示にするのが正解なのでしょうか?
答えは「図面の種類による」です。または「人それぞれ」「現場による」とも言えます。
こればかりは明確な答えはありませんが、施工する際に見ることがなければそれは不要な情報と言えます。
「天井配管ダクト図」を例に挙げると、壁や柱の仕上げ位置や部屋名・部屋情報は絶対に必要と言えます。
建築寸法・建具情報・床点検口・家具什器などは不要でしょう。壁記号は貫通処理や天井内の納まりに影響するためあった方がいいかもしれません。
ただ、作図検討時には必要でも、実際に職人さんが施工する際に不要な情報はシートを分けて非表示にして渡せるようにしてあげるといいと思います。
・
2.建築図データの整理方法
建築図は設備施工図と同じく、ゼネコンが常に新しい情報へ更新していきます。
受領のたびにデータを整理するのは手間も時間もかかるので、整理するの回数は必要最低限にとどめ、作業時間を短縮できるように心がけましょう。
・
①レイヤ選択とシート移動をうまく使おう
建築図の情報を整理したい場合は、『レイヤ選択』と『シート移動』を駆使して行いましょう。
まずは建築データを開きます。「ベース」シートのままだと他データと混在してしまう可能性があるため、別シートに移動しておきましょう。
シート名に建築図面の更新日を入れると管理がしやすくなります。(例:「1階平詳220130」など)

分かりやすく、シート単色指定の色とシートタブの色を合わせています。
全選択しても梁図など選択できない状態のデータがある場合は、レイヤが表示状態になっているため編集状態に変更する必要があります。

必要なデータ全てを「平詳」シートに移動し、別に「非表示」シートを作成し分かりやすく黄色単色指定にします。
建築図面は相当ダメな図面でない限り、そこそこレイヤ管理がされているので、不要なデータをレイヤ選択し「非表示」シートに移動していきます。
『図形編集→選択→レイヤ選択』で非表示にしたいレイヤを選択する際に、該当レイヤを探すのは大変なので、「属性取得」機能をフル活用しましょう。

「属性取得」を選択し、平面図上で非表示にしたい情報をクリックします。すると該当レイヤが自動選択されるので、そのままOKを選択すると該当レイヤを一括選択できます。

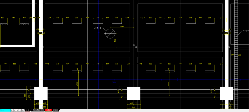
選択したデータをそのままシート移動で「非表示」シートに移動するだけで、移動したデータが黄色で表示されます。


この作業をひたすら繰り返していき、非表示にしたいデータが全て黄色になるまでひたすら繰り返します。大体移動を終えたら「非表示」シートを非表示にしてチェックしてみましょう。
全部のデータ移動が完了したら、次に「非表示」シートのみを表示して本当は必要な情報が無いか確認します。
建築図のレイヤ管理も完璧ではないので、たまに必要なデータが寸法や家具のレイヤに紛れていることがあります。
レイヤの中に一部戻したいデータがある場合は、『設定→レイヤ設定』を開き「属性取得」をし、必要なデータを選択したあと「反転」を押してOKします。

すると該当レイヤのみが画面上に表示されるので、必要なデータのみを選択しやすくなります。
必要データを個別に選択したら「平詳」シートに移動を行います。移動が完了したらレイヤ画面で再度「反転」をすると元に戻ります。あとはその繰り返し。

この手順で作業を行うと、必要なデータを確認しながら短時間でデータ整理が可能になります。

ショートカットキーを使用したり、レイヤ選択画面でもAlt+Gで「属性取得」、右クリック+Rで「反転」するので、慣れてくれば普段の数倍早く作業を完了できると思います。
建築図面に関わらず、設計図のデータ整理にも同じ手法で仕分けを行うことが可能です。
CAD初心者の方やCADオペさんがデータ整理することも多いと思いますので、やり方がわからず時間がかかっている場合は是非参考にしてみてください。
・
②文字フォントを一括変換しよう
シート整理する時間がない場合でも、建築図の文字フォントを変更するだけでも、設備図と重ねた時に非常に見やすくなります。
もちろんシート整理済の図面もフォント変換は実施した方がいいです。
文字変換はシートデータを一括選択した状態で、『基本図形→文字→一括変更』で文字情報だけ変更が可能です。
建築文字の多くは「MSゴシック」などで作図されていますが、変更する際は「オリジナルフォント」がおすすめです。

オリジナルフォントは他の文字フォントと異なり、線の太さ設定に準じて文字の大きさが変わります。
建築図の線副設定は通常~0.2程度が見やすくなります。
もし建築文字が設備より上に表示され見にくくなっている場合は、同じ文字変更時に「飾り」タブ→「文字背景」を「表示する」に一括変更しましょう。

建築図データを整理するだけで作図時も施工時も見やすくいいことだらけです。
面倒な作業ですが、そういう作業ほど作業効率を上げて時短化を心がけてみてはいかがでしょうか。
・


